Устройство и принцип работы
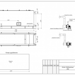
Котёл КВа-7,25 состоит из двух основных блоков: топки и конвективной камеры. Горелкой топливо направляется в камеру, сжигается, нагревая теплоноситель и трубопровод. Мощность работы горелки регулируется, что позволяет поддерживать стабильную температуру воды в трубах. Гидравлическая схема защищена от перегрева соприкасающихся с теплоносителем поверхностей, чем увеличивает срок службы изделия и избавляет от подготовки воды. Газы выходят из котла без дымососа, через трубу.
Водогрейный котёл КВа-7,25 имеет систему безопасности. На задней стенке расположен взрывной клапан, который защитит оборудование от поломки в случае скачка давления. Горелка оснащена автоматическим регулированием, которое поддерживает стабильное давление, прекращая подачу топлива при высоких показателях и увеличивая – при низких.
Особенности и преимущества
- КПД более 90% обеспечивается большой топливной камерой, которая способствует полноценному сгоранию топлива и помогает рационально использовать горючее;
- Минимальные затраты на горючее способствует экономичному использованию;
- Устойчивость к образованию накипи образуется благодаря гидравлической схеме, предотвращающей застои и налипания, появление которых снизило бы КПД при длительном использовании котла;
- Совместим с множеством горелок, позволяя при выборе ориентироваться на собственные нужны;
- Автоматика безопасности сокращает вероятность поломки и увеличивает срок службы оборудования;
- Автоматизация процесса делает работу котельной автономной и упрощает труд кочегара;
- Низкие требования к качеству воды избавляют от необходимости подготавливать воду перед использованием;
- Небольшой размер котла позволит уместить его даже в небольших котельных;
- Минимальные монтажные работы сэкономят время и средства при установке котельного оборудования.
Размещение и установка
Котёл КВа-7,25 должен быть установлен специалистами. Котел имеет значительный вес, поэтому устанавливается только на пол, на специально подготовленную поверхность. Для установки котла не требуется заливать фундамент: котел ставится на раму и опоры, а опоры крепятся к подготовленной поверхности болтами. На фронтовую стенку котла крепится горелка. Устройство прибора предполагает целый ряд подходящих горелочных устройств разных производителей.
Эксплуатация и техническое обслуживание
Водогрейный котел КВа очень прост в эксплуатации. После монтажа котел подключается к водопроводной системе и начинает работу. Котёл КВа-7,25 полностью автономен, не требует специальной подготовки воды. Помимо простоты использования котел КВр имеет еще и более длительный срок службы, чем, например, простой бойлер.
Важно отметить, что производить ремонтные работы и техническое обслуживание могут только квалифицированные специалисты, имеющие специальное разрешение. При организации технического обслуживания следует учитывать требования «Правил устройства и безопасной эксплуатации паровых и водогрейных котлов».
Комплектация
Котёл КВа-7,25 доставляются в максимально собранном заводском виде и комплектуются всем необходимым для правильной установки прибора: запорной арматурой, контрольно-измерительными приборами и инструкцией по эксплуатации. Горелка в комплект не входит.
















